2026.01.23
スタディハウス湘南・横浜 モデルハウスオープン直前!
湘南・横浜エリアにモデルハウスオープン!!
こんにちは!
アートテラスホームです。
湘南・横浜エリア初!
スタディハウス湘南・横浜 ”日向の樹(ひなたのき)” モデルハウスが2026年2月1日オープンします!
一
皆さまの理想の暮らしをぜひ、お聞かせください!
一
~スタディハウスへの想い~
パッシブハウス×高性能の家づくりを目指すアートテラスホームが手がける家づくり、【日本一の工務店】と業界内で定評のある(株)シンケンの「大切なことだけを詰めたシンプルで、心地いい住まい『スタディハウス』」。
一
住まい手目線で一棟一棟紡ぐように建ててきたその48年の歩みは、私も同じ大工から創業した住まいのつくり手として、大きな感銘を受けています。
シンケンスタイルのつくりあげた「スタディハウス」。その考え方も手法もそのままに、地元・湘南・鎌倉をはじめとする横浜エリアの方にお届けしたい、と思いました。
一
アートテラスホーム株式会社
代表取締役 石原 誠司
一
一
自然エネルギーで室温を調える設計・素材・工法
一
【大きな窓で自然とつながるオール木製サッシ】

「photo:©シンケンスタイル」
一
スタディハウスでは、高い断熱性を誇る高性能の木製サッシ「プロファイルウィンドー」を採用しています。
大開口サッシ「プロファイルウィンドー」からは、湘南の風を導くだけでなく、四季の移ろいやお気に入りの風景を切り取ります。
時には人と人のコミュニケーションを取り持つ大開口サッシは、人間の感性を刺激し、思いもよらない自然の美しさや、計算では計れない人情の機微を感じさせてくれる大事な役割を担っています。

「photo:©シンケンスタイル」
一
【防火性能を備えた呼吸をする白い壁 モイス】

「photo:©シンケンスタイル」
一
地震に強い構造+安心の防火性能のモイスを採用しています。
木のような調湿性能と加工性、そして木の弱点を補った防火性能を備えつつ、耐力壁として住まいの骨格を支える「用・強・美」を兼ね備えた、まさに理想の素材です。

「photo:©シンケンスタイル」
一
【防火構造の、木の外壁】
アートテラスホームではあらゆる国産材の中から、人の手によって育てられた日本の3大美林のひとつといわれる天竜産杉材を採用しています。
湘南エリアでの気候・風土などの環境条件が近く木材として最良の状態で家づくりが行えます。
また、外壁を一枚だけ外せば壁の内部まで確認できるメンテナンス性の高い「鎧張り」を採用しているので長い間美しい、木と自然素材の家が保てます。
外壁含め、屋外に使用する木材はすべて、きわめて安全性の高い「防腐」「防カビ」「防蟻」剤である「ホウ酸塩」を、木材の奥まで浸透させた杉材を使用しています。
モイス+断熱材+杉材(天竜産) ▶ 防火構造外壁として大臣認定を取得しています。
30分間の試験により、隣地の火災に対して①破損しない②室内に熱を伝えない③火災が貫通しない
ということが分かっています。
一

「photo:©シンケンスタイル」
↑ 30分間の試験
一

「photo:©シンケンスタイル」
↑ 30分後の内壁面
一

「photo:©シンケンスタイル」
↑ 30分後の外壁面
一
【暮らしを広げる働く壁プレイウォール】
生活のシーンやライフステージの変化に合わせて暮らしの中から生まれる様々なアイデアを思い通りに実現できる、自由になる壁。
それが「PLAY WALL・プレイウォール」です。
内壁仕上げ材を張らないことで生まれる13cmの可能性。
家中をぐるりと囲む13cmの奥行き空間は、本来は仕上げ材を張ったその内側、壁体内になるべき空間ですが、それが無いことで壁体内
に発生しがちなカビ・結露の不安もありません。
一軒あたりの延べ壁面積はなんと、47.70㎡、文庫本約30,000冊が並ぶ広さです!
一

「photo:©シンケンスタイル」
一
一
<活用アイデア>
・大きめの棚板でラックを使った書斎スペース
・湘南の日差したっぷりで壁一面の植物コーナー
・造作キッチンは見せる収納でお気に入りの道具を並べて
・ピクチャーレールを取り付けてアトリエみたいに
・吹き抜け空間にマガジンラックと書棚をミックスして開放的な図書館風に
・勾配天井の子ども部屋に活用
一


「photo:©シンケンスタイル」
一
【湘南・横浜でDIYができる家】
スタディハウス湘南・横浜は、家族の変化に柔軟に対応できる「自由になる空間」を基本として、
100年を超えて住み継いで欲しいという想いを形にしました。

■MODELHOUSE
1階面積:12.70坪(42.00㎡)
2階面積:11.44坪(37.84㎡)
建物面積:24.15坪(79.84㎡)
■GARDEN KITCHEN
面積:3.00坪(9.9㎡)
■敷地面積:74.12坪(245.03㎡)
一
一
~住まい方のイメージをご紹介~
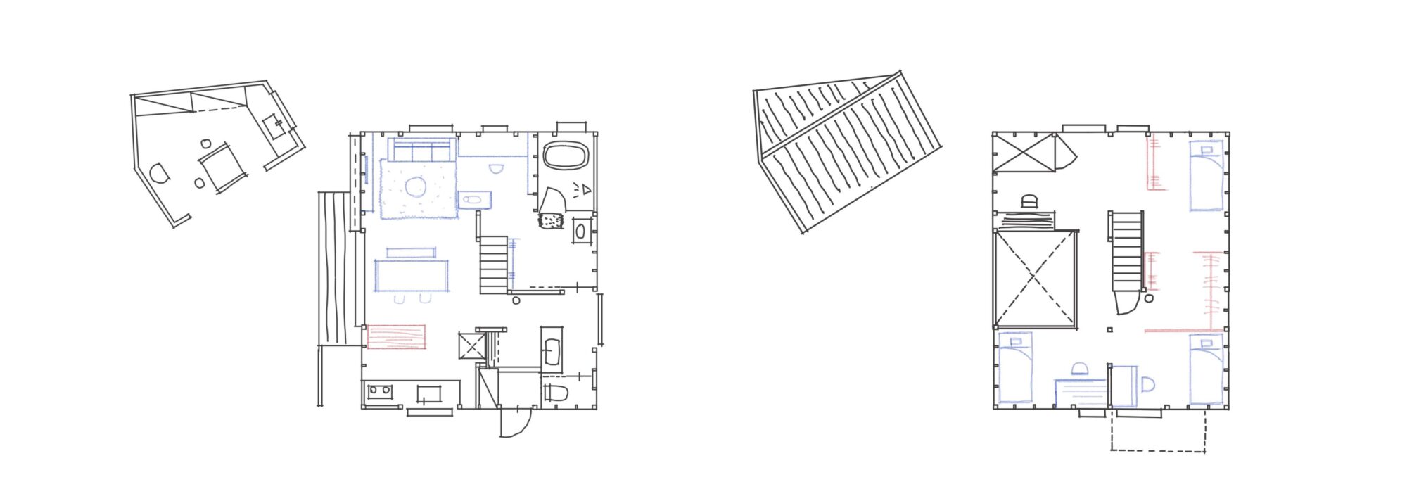
【夫婦+子ども1人 のCASE】

大開口サッシからは湘南の眩しい日が差し込む天気のいい朝。
「今日はお休みだし、ガーデンキッチンで朝ご飯でも食べようか!」
一
一
大開口サッシからは、お庭が広がり造作キッチンから朝ご飯を運ぶママと子どもの姿が想像
できます。
一
そして、お庭に植えてあるマメザクラの花びらをキャッチする子どもの姿。
一
ご飯の後は、造作キッチンの正面にあるキッズスペースでパパと子どもは本を読んだりちょっと休憩…
自由になる壁 PLAY WALLがある造作キッチンは、あえて見せる収納にし片づけも簡単に。
キッチンに立つと、リビングに居る家族の様子が見えて安心です。
一

「photo:©シンケンスタイル」
一
お家の中心にある階段を上がると、こちらもPLAY WALLで造作デスクをつくりました。
文庫本が約30000冊並ぶ広さには、ご夫婦の趣味の本や雑誌・小物を置いたり…
2階の造作デスクにいても、吹き抜けを通して1階にいるパパと子どもとのコミュニケーションがとれ
るので、安心してママも自由時間。
一

「photo:©シンケンスタイル」
一
洗面脱衣所へは、扉をあえて設けないことで行き来をラクにしました。
吹き抜け空間のため2階にいるママにも、
「お風呂あがったよー」のパパと子どもの声がよく聞こえます。
一
そして、寝る前にお庭へ出て湘南の夜空をみんなで眺める休日の夜。
桜が満開になった4月は、冬の空から春の空に移り変わり。
「今日の一番星はすごくきれいだね!」
そんな季節の移ろいを、お庭に椅子を出したり、大開口サッシに腰掛けて3人で見てみたり。
一
そんな、スタディハウス湘南・横浜で暮らす日々が、家族みんなの心を穏やかにしてくれます。
一

「photo:©シンケンスタイル」
一
一
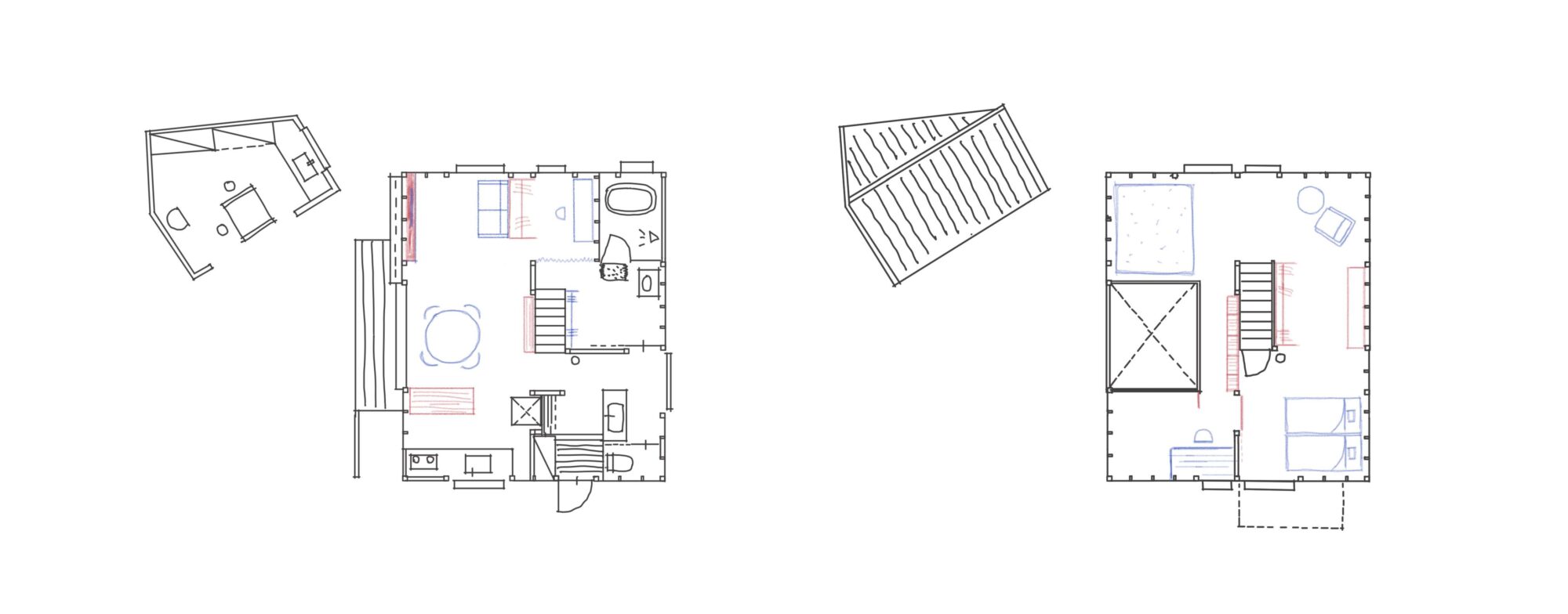
【夫婦2人 CASE】

子育てが一段落したご夫婦のお住まい。
湘南の家に、ご夫婦2人で過ごす時間が中心となりました。
リビング・ダイニングはゆったりと過ごす空間に。
スタディハウス湘南・横浜では、高性能の木製の大開口サッシを採用しています。
大開口サッシに腰掛ける30cmの特等席。
一

「photo:©シンケンスタイル」
一
立つ時とは違う、近くて大きく、細部まで感じられる景色が広がります。
子どもと見ていたマメザクラも大きくなり、
「もう少しで開花しそうだね。」
と桜の花びらをキャッチしていた頃の話をするご夫婦。
一

「photo:©シンケンスタイル」
一
ガーデンキッチンでは、湘南の風を感じながらご近所の方々と集まってお茶をしたり…
子育てなどでバタバタとしていた時には気づかなかった、湘南での季節や時間の移ろいを楽しむ毎日を
過ごします。
一
また、2階へ行くとご夫婦の寝室とは別の寛ぎスペースも設けました。
天井の高さを低く抑えて設計しているため、階段が通常より少ないため上り下りが楽なのも嬉しいポイ
ントとなっています。
一

「photo:©シンケンスタイル」
一
壁面収納のPLAY WALLにはご夫婦の好きな本を置き、図書館風にしました。
吹き抜けがあることで、開放感の中で寛ぐことができる贅沢な時間です。
本以外にも、ご夫婦で行った旅行先の小物を置いたり好きなもので囲まれた落ち着いた時間を過ごしま
す。
2階にはフリースペースも。
子どもが居た時には設けていなかった仕切り。フリースペースには間仕切りを追加し来客者が宿泊する
際にも安心して過ごせるようにしました。
家を巣立った子どもが帰ってきた際には、懐かしさを感じながらも変化した木と自然素材の家に新鮮さ
を感じるのではないでしょうか。

「photo:©シンケンスタイル」
スタディハウス湘南・横浜では、湘南の風や光だけでなく季節や時間の経過に合わせたさまざまな光景が体感できます。
スタディハウス湘南・横浜 ”日向の樹” では夜の見学会も開催中です!
木と自然素材を感じるモデルハウスへお越し頂き、お気に入りの風景を体感してみませんか?
一
一

「photo:©シンケンスタイル」
アートテラスホームと一緒に住まい方をイメージして
理想の暮らしを描いてみませんか?
一
※こちらでご紹介をしているお写真は、全て(株)シンケンさんからお借りしています。
一
一



