2026.02.06
湘南横浜リノベーションのリアル|築47年の家はここまで変わる
こんにちは!
ブログ担当の杉村です。
今回は、【湘南横浜リノベーションのリアル|築47年の家はここまで変わる】についてご紹介致します!
一
アートテラスホームは、横浜・湘南エリアを中心に、自然素材とパッシブデザインを取り入れた新築住宅と、木や自然素材を活かしたリノベーション事業をおこなっている会社です。
このブログでは、築47年の住宅を性能向上リノベーションした【結の家】をベースに、
湘南・横浜らしい暮らしに合わせたリノベーションのリアルなプロセス・考え方を事例写真と共に解説します。

【Before写真】
⇩

【After写真】
一
一
なぜ築47年でもリノベする価値があるのか?
日本の戸建て住宅の多くは新築後25〜30年で「建て替え」を検討されることが一般的ですが、実際には構造体がしっかりしていれば、住まいは何度でも蘇る資産です!
特に湘南横浜のような自然環境豊かな地域では、立地そのものに価値があり、「建て替え」よりも「性能向上リノベ」が総合満足度を高めるケースが多く見られます。
この実例はまさにその典型です。築47年の家が新築以上の快適さへと変わっていくリアルな過程…
それを知ることは、これからの家づくりを考えるすべての人にとって価値ある学びになります。
一
一
Before:47年経過した家の状況と課題
1. まずは住まいの現状把握
この築47年の家は、
-
経年劣化した外壁と屋根
-
旧基準のままの断熱
-
間取りの使い勝手の悪さ
-
水回りの老朽化といった、昭和〜平成初期の典型的な住宅でした。
一
リノベーション前 外観


一
リノベーション前 リビング・水回り・和室

【リノベーション前のリビング】

一
こうした住宅は「見た目だけ」で語られがちですが、実は屋根・外壁だけでなく、性能面(断熱・耐震・生活動線)にも大きな改善余地があります。
リノベーション前リビングのサーモグラフィ画像をみると、窓付近の足元部分は17℃前後となり肌寒く感じるのが分かります。
また、撮影日は晴天で日光が入ってはいますがやはり冷気が広がっているのがわかります。
ソファでお茶や読書とジッとしているとかなり寒さを感じるのではないでしょうか。
一

【リノベーション前のキッチン】

キッチンも同様に、足元が冷えているのがサーモグラフィ画像でわかります。
一


【リノベーション前の和室】
一
お子様の作品等がお家全体に飾られており、ご家族の繋がりが感じられます。
今回のリノベーションでも、ご家族4人と愛犬が楽しく健やかに幸せに暮らす様をイメージして設計しました!
一
Step 1|性能向上リノベーションの基本戦略
■耐震性能の再構築
築47年ということは旧耐震基準の可能性が高く、耐震性能の見直しが最重要項目です。
耐震診断を行い、必要な補強工事を計画することがリノベの着手点となりました。


【フルリノベーションのための解体作業】
一
基礎と一部の構造材を残して柱・梁など構造材の入れ替え、金物補強をおこない耐震補強をしました。
残せるものは残しつつ、足りない部分に梁や柱・金物を入れました。
一

【耐力壁の追加】

【耐力金物の追加】
一
■ 断熱・気密性能のアップデート
住まいの快適さは断熱と気密で大きく変わります。特に湘南横浜は夏の湿熱・冬の冷えが顕著な地域で、断熱性能を現代の基準まで高めることが重要です。
断熱材の追加、窓の断熱性向上、気密施工の徹底が行われました。
屋根・壁断熱には、アクアフォーム100倍発泡、床断熱にはネオマフォームを採用しました。
一



i
窓は全て、YKK APのAPW330・ドアにはイノベストD50を新設しました。
一

一
Step 2|間取りの再構築と暮らしの価値アップ
■間取りの課題と新たな暮らしのコンセプト
以前の間取りは、個室が多く廊下も広く、家族団欒を大切にしながらも扉を閉めればしっかりと個室として成立するのが特徴でした。
1階・2階と両方に和室があるのも昭和期の住宅を表しているのが分かります。
リノベーションにより、もっと家族のコミュニケーションが取れる間取りに出来るのでは…という事から、こちらの家を家族のコミュニケーションがとれる「結の家(ゆいのいえ)」つながりを育む、絆の住まいと名付けました!
一
■ 自然素材を取り入れ、効率と開放感を両立した新間取り
リノベでは以下をポイントに間取りを再設計しました!
・大空間LDKの実現
・回遊動線で家事効率アップ
・家族が自然と集まる設計
・玄関から水回りへの導線改善
i
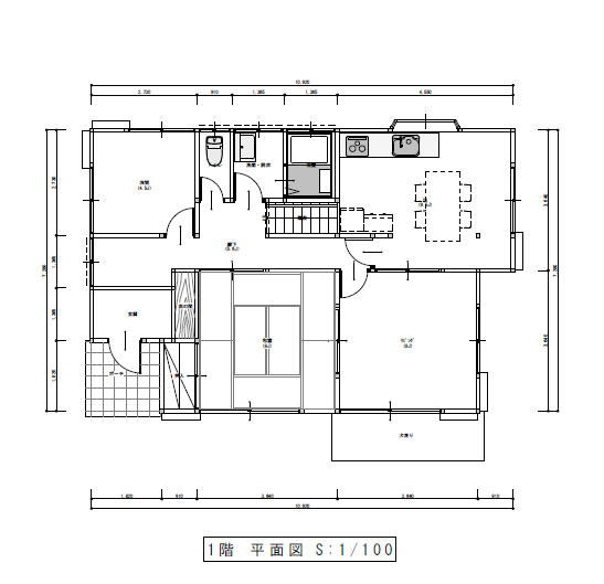
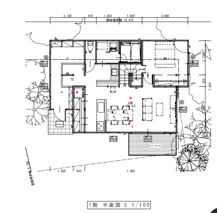
【1階Before/After】

【リノベーション前 1階平面図】
⇩

【リノベーション後 1階平面図】
一
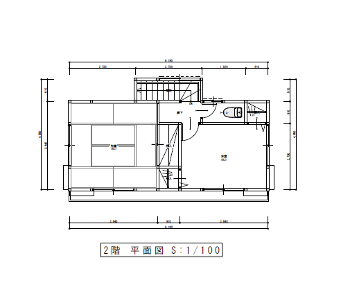
【2階】

【リノベーション前 2階平面図】
⇩

【リノベーション後 2階平面図】
1階は広いLDKとウッドデッキに繋がり家族が自然と集まる心地よい場所になりました。
水回りもキッチン近くにまとめられ家事がスムーズにこなせる動線に改善されました!
耐震性能についても、リノベーション前と比べて約3.6倍の耐震性能・
性能についても、断熱性能UA値0.46w/㎡k(断熱等級6)になりました。


一
また、1階に個室を設けたことで将来的なワンフロア生活にも対応でき、ライフステージの変化にも柔軟に対応できます。
一

築47年の自然素材を使用したリノベーション物件
一

自然素材を使いリノベーションしオープン収納にした部屋
一
リノベーションを成功させるために重要なこと
一
① 住まいの”カルテ”をつくること
耐震診断、断熱診断、設備の現状など、しっかりとした調査なくしてリノベは始まりません。
まずはプロの診断からスタートしましょう!
② 設計と性能のバランスを取る
美しいデザインだけに走らず、耐震・断熱・気密という性能面を同時に上げることが、
価値あるリノベーションの核心です。
③ 住まい手の暮らしを徹底的に考える
間取り変更や素材選びは、住む人のライフスタイルを徹底的に考えたうえで決めること。
「カッコいいだけ」では一生モノの住まいはつくれません。
一
最後に:築年数は“価値”ではない
築47年という数字は、一見古さを感じさせるかもしれません。
しかし、しっかりと手を入れて性能を向上させれば、新築以上の価値ある住まいになります!
家づくりをしている方に、少しでも参考になりましたら幸いです!
一


一
弊社の事例は下記のコンテンツからもご覧いただけます♪
横浜市金沢区・磯子区・港南区・逗子市・鎌倉市・葉山町・藤沢市で新築注文住宅・高性能リノベをご提案する建築会社です。
アートテラスホームの施工事例をご紹介しています
高気密高断熱の新築・リノベ完成建物紹介や床下エアコンのご紹介をしています
最新イベント&ご予約・お役立ち情報を発信しています
大工さんやスタッフの日常もご紹介しています
金沢区・鎌倉・湘南…横浜南エリア(ナンヨコ)にこれから住みたい人のためのWEBマガジンです









