REAL ESTATE
物件検索
2階建てでもゆったりと住むことが出来る土地面積125㎡
仲介物件
古都鎌倉で生きる 雪ノ下3丁目
雪ノ下3丁目 宅地分譲
鶴岡八幡宮と鎌倉宮に挟まれた閑静な住宅地
-
所在地神奈川県鎌倉市雪ノ下3丁目
-
交通横須賀線「鎌倉」駅下車徒歩約17分
-
敷地面積125.05㎡(37.83坪)
-
販売価格6,890万円
C値0.7以下 Ua値0.46以下 耐震等級3
ZEH対応 パッシブデザイン 自然素材
LAND PLAN
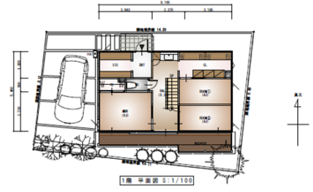
HOUSE PLAN
LOCATION & ACCESS
神奈川県鎌倉市雪ノ下3丁目
-
JR鎌倉駅1400m
(約17分) -
とんかつ屋あら珠1400m
(約17分) -
東急ストア1400m
(約17分) -
もとまちユニオン1200m
(約15分) -
豊島屋1200m
(約15分) -
BENIYA本店800m
(約10分) -
鶴岡八幡宮450m
(約6分) -
古民家カフェ ユキノシタ650m
(約8分) -
鎌倉シャツ本店550m
(約7分) -
横浜国大教育学部付属鎌倉中学校450m
(約6分) -
荏柄天神社350m
(約4分) -
清泉小学校250m
(約3分) -
鎌倉宮550m
(約7分) -
鎌倉ハンバーグ350m
(約5分) -
頼朝の墓(法華堂跡)160m
(約2分)
- ※掲載の徒歩分数は80m、自転車分数は250m、車分数は400mを1分として算出した概算時間です。
OUTLINE
| 物件名 | 雪ノ下3丁目 宅地分譲 |
|---|---|
| 住所 | 神奈川県鎌倉市雪ノ下3丁目 |
| 交通 |
横須賀線「鎌倉」駅下車徒歩約17分 |
| 総区画数 | 1区画 |
| 販売区画数 | 1区画 |
|---|---|
| 販売価格 | 6,890 万円 |
| 敷地面積 | 125.05㎡(37.83坪) |
| 諸費用 | 別途 |
| 地目 | 宅地 |
|---|---|
| 土地の権利形態 | 所有権 |
| 土地状況 | 宅地 |
| 用途地域 | 第一種中高層住居専用地域 |
| 私道負担 | なし |
| 道路幅員 | 約6m |
| 建ぺい率 | 60% |
| 容積率 | 150% |
| 造成完了時期 | 更地 |
| 引き渡し時期 | 応相談 |
| その他制限事項 | 建築基準法22条区域 |
| その他概要・ 特記事項 |
景観地区(旧市街地の住宅地) 埋蔵文化財包蔵地区 |
| 取引態様 | 仲介(アートテラスホーム(株)) |
| 売主 | 個人 |
| 販売会社 | 東急リバブル |
| 情報提供日 | |
| 次回更新日 |
※建築条件付き土地とは、その土地に建築する建物の建築請負契約が、一定期間内に成立することを条件として売買される土地のことをいいます。建築請負契約成立に向けて設計プランを協議するため、土地購入者が自己の希望する建物の設計協議をするために必要な相当の期間の交渉期間が設定され、その期間内で希望を満たすプランが実現できたかどうかにより結論を出します。なお、この期間は概ね3ヶ月程度とされています。納得のいくプランが出来ず、建築請負契約が成立しない場合、土地売買契約は白紙に戻り、土地契約にかかった代金(土地代金、手付金など)は名目のいかんに関わらず、全て返却されます。









